Space Planning / 3D Modelling / Interior Design / Commercial / Residential
Art & Logistics Company - Full Office Refurbishment
Year
Location
2023
Slough, Berkshire
Category
Workspace
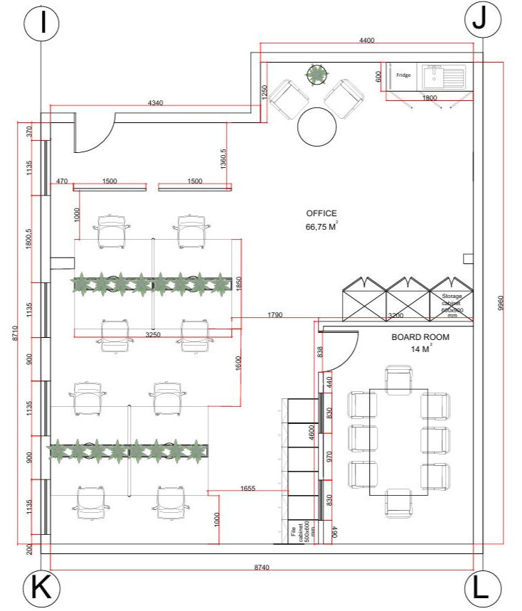
My employer was tasked with refurbishing an outdated office—from design to construction—by optimising the entire space, including flooring, walls, ceilings, and furniture. Another key part was to expand the footprint by converting a storage climate room into an additional office, all within a fixed budget.
Instead of a typical corporate style, the client wanted a warm, homely feel—so a nature-inspired design was created, featuring walnut, concrete, and stone finishes, paired with calming tones of green, terracotta, and neutrals. To brighten the naturally dark interior, light grey-beige carpets and energy-efficient LED lighting were added.
The new layout is more open yet well-structured, with work areas featuring compact desks, bespoke planters, and wall-side storage— separated by soft breakout spaces. The main kitchen was reconfigured in size and appliances, while an existing unit was repurposed in the converted climate room.
The result is a calm, spacious, and uplifting workspace that improves the team's mood every day.
















